Головна >> Продаж квартир >> Об'єкт №213030500

Продається квартира Київ, Печерський, Дружбы Народов бульв., 21  (№ 213-030-500)

Продається квартира Київ, Печерський, Дружбы Народов бульв., 21 фото 1

Адреса: Київ, Печерський, Дружбы Народов бульв., 21

показати на карті

Кімнат: 2

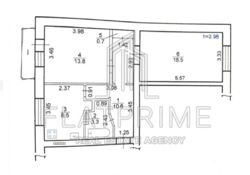
Площа: 56.73 / 37.8 / 8.4 м? м2

Поверх: 2 / 6

Ціна: 74 000 $

Контакти: Олена
+380967099965

66800@ukr.net
 

Миколи Міхновського бульв. (Дружби Народів), 21
Продається простора 2-кімнатна квартира у сталінці на Печерську бульвар Міхновського 21 «Дружби Народів». Загальною площею 57,4 кв.м., має зручне планування, роздільні кімнати, одне з вікон виходить у тихий зелений двір з дитячим майданчиком, інші на бульварну частину, висота стелі 3 метри. Квартира в жилому стані розташована на 2 поверсі, встановлені металопластикові вікна, балкон засклений, газова плита, лічильники на воду, парадне охайне. Має вигідне розташування: до метро «Дружби Народів» Звіринецька 2 хвилини, під рукою є все, що необхідне для комфортного проживання. Ідеальне співвідношення ціни та якості, квартира підходить як для житла так і під здачу в оренду.
Сталінка
Роздільне
Задовільний стан


Замовити зворотній дзвінок