Головна >> Продаж квартир >> Об'єкт №213163572

Продається квартира Київ, Дарницький, Анны Ахматовой ул., 35  (№ 213-163-572)

Продається квартира Київ, Дарницький, Анны Ахматовой ул., 35 фото 1

Адреса: Київ, Дарницький, Анны Ахматовой ул., 35

показати на карті

Кімнат: 3

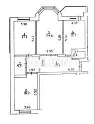
Площа: 104 / - / 15 м2

Поверх: 5 / 16

Ціна: 125 000 $

Контакти: Олена
+380967099965

66800@ukr.net
 

Продаж 3к квартири, вул. Ахматової, 35, Дарницький район. Знаходиться на 5 поверсі 16-поверхового будинку, не кутова, цегляний будинок. Загальна площа 104,9 кв.м., житлова 60,6 кв.м., кухня 15,9 кв.м. Планування вдале: три великі окремі кімнати (17,1; 18,9; 24,6), велика лоджія, просторий передпокій, 2 санвузли. Квартира з якісним ремонтом без меблів, кухня потребує модернізації. Чиста і доглянута прибудинкова територія, охайне парадне, консьєрж. Чудово розвинена інфраструктура району: школи, дитячі садочки, магазини, супермаркети, поряд Рівермол. Відмінна локація для проживання, оскільки до метро «Осокорки» або 'Позняки' пішки 12 хвилин. Чекаємо Вас на перегляд.


Замовити зворотній дзвінок