Головна >> Продаж квартир >> Об'єкт №213177550

Продається квартира Київ, Святошинський, Краснозаводской пер., 2/13  (№ 213-177-550)

Продається квартира Київ, Святошинський, Краснозаводской пер., 2/13 фото 1

Адреса: Київ, Святошинський, Краснозаводской пер., 2/13

показати на карті

Кімнат: 1

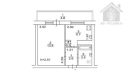
Площа: 30 / - / 6 м2

Поверх: 2 / 9

Ціна: 42 500 $

Контакти: Олена
+380967099965

66800@ukr.net
 

Продається світла 1-кімнатна квартира після ремонту. Після ремонту ніхто не жив. Локація: пров. Базилевича 2/13 (Червонозаводський провулок)— 7 хв пішки до метро Святошин або Нивки Поверх: 29 Площа: 30,5 м? (кімната 14 м?, кухня 6 м?) Санвузол сумісний 3,5м Великий засклений балкон на дві кімнати Всі вікна в квартирі і на балконі метало-пластик. В кімнаті натяжна стеля. Люстра має різні режими світла, білий, жовтий і кольоровий. Переваги: — Новий, світлий ремонт — Світлий інтер’єр, зручне планування — Газова плита — економія та незалежність від електрики — Затишний двір, гарні сусіди Продається з технікою і меблями. Заходи і живи. Ідеально для життя або інвестиції — з першого дня можна здавати в оренду.


Замовити зворотній дзвінок