Продається квартира Академика Туполева ул., 7, Київ, Святошинський, Нивки (Святошинский) (№ 213-246-787)
![]() | Адреса: Академика Туполева ул., 7, Київ, Святошинський, Нивки (Святошинский) Кімнат: 2 Площа: 46 / - / 6 м2 Поверх: 5 / 5 Ціна: 55 000 $
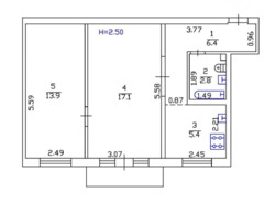
Світла та тепла 2-кімнатна квартира по вул. Мрії 7 (колишня Туполева), Святошинський район, на 5-му поверсі 5-поверхового будинку, загальною площею 46 м2, прохідна вітальня 17 м2 з виходом на балкон, спальня 14 м2, кухня 5,4 м2, просторий санвузол, великий коридор. В квартирі виконано свіжий ремонт, рівні стеля та стіни, нова електропроводка, водопровідні та каналізаційні труби, натяжні стелі, металопластикові вікна, ламінат, керамічна плитка, сантехніка, ГАЗОВА плита, міжкімнатні двері, паркет, металеві вхідні двері. Чисте парадне. Прибудинковий паркінг. Зручне місцерозташування. Поруч супермаркети, ринок, школа, дитсадок, парк, зупинка громадського транспорту. 5 хвилин їзди до найближчих ст. метро - Святошин, Нивки (червона гілка) та Сирець (зелена гілка). |














